
























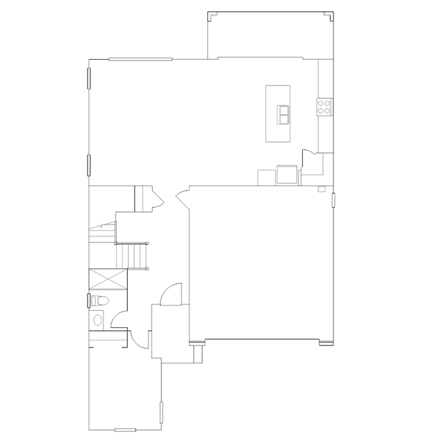
The Great Room, kitchen and dining room share an open floorplan at the back of the first level of this two-story home, leading out to a covered patio thats ideal for entertaining or relaxing. Off the foyer is a versatile bedroom that can be used for overnight guests, a home office or more. Three more bedrooms, including the luxurious owners suite, occupy the second floor.