















































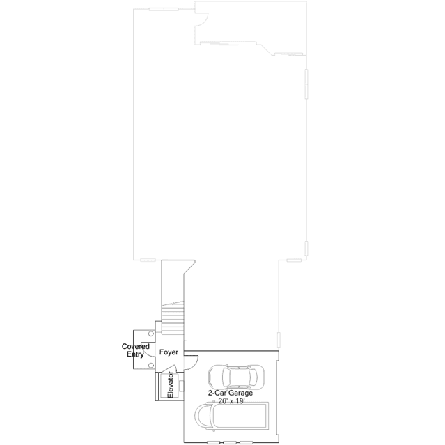
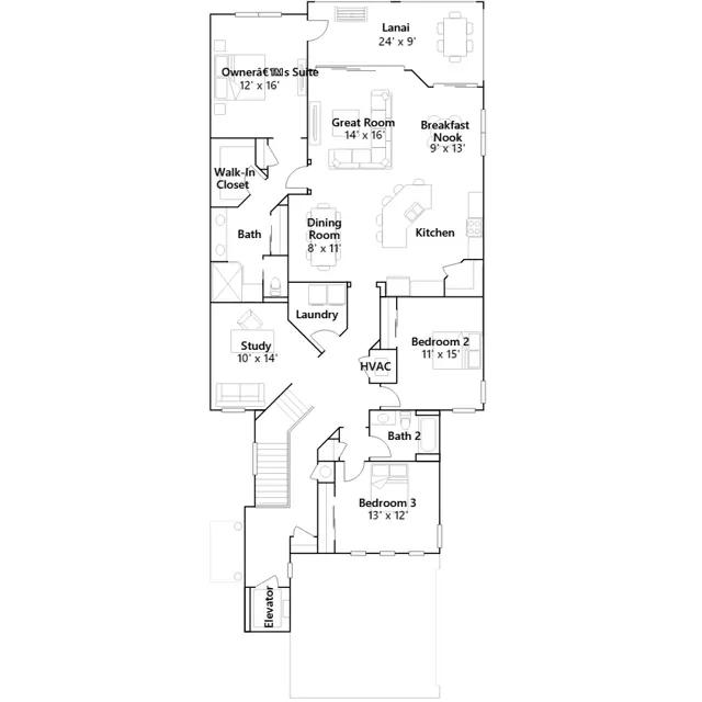
This two-story townhome is the only plan in this collection to feature a private elevator. Found upstairs at the heart of the home is a spacious Great Room, which connects to the casual and formal dining areas, a modern kitchen and an attached lanai. Nearby is the serene owners suite with a private bathroom and outdoor access. Down the hall are two large bedrooms and a quiet study ideal for at-home work. Located within Willowgreen at Babcock Ranch, this intimate coach home community offers lakeside living on scenic Lake Babcock, less than one mile from Founders Square. Enjoy a relaxing outdoor community pool and bath house, all set within Americas first solar-powered town. Babcock Ranch is a walkable, eco-friendly community celebrated for its green innovation, modern amenities, and vibrant lifestyle.
Stay informed with Livabl updates on new community details and available inventory.