












































Images coming soon
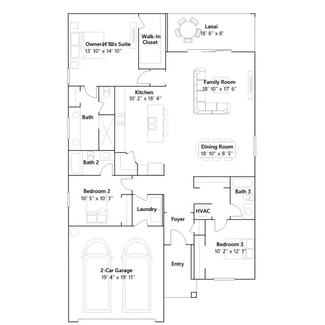
Located in Tuckers Cove at Babcock Ranch, Punta Gordas only waterpark inspired community. This single-story home features a split floorplan that divides the comfortable bedrooms with an open layout among the dining room, kitchen and family room. An attached lanai offers indoor-outdoor hosting opportunities, while the nearby owners suite showcase an oversized walk-in closet and a spa-style bathroom. Rounding out the home is a convenient two-car garage. This home is your ticket to next-level resort living. Enjoy thrilling water slides, a winding lazy river, and the Shipwreck Taverna ship-themed bar and grill that brings vacation vibes home. Set within Babcock Ranch, Americas first solar-powered town, youll be part of a forward-thinking, eco-friendly community known for its walkable design, green innovation, and vibrant lifestyle. Set anchor at Tuckers Cove in Babco...
Stay informed with Livabl updates on new community details and available inventory.