hero-image-0
hero-image-1

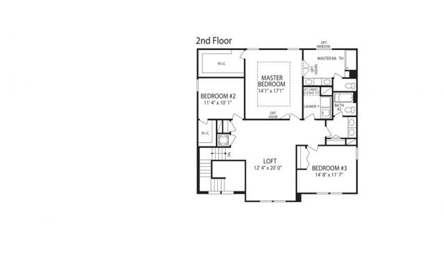
The Chatham Plan

By

Maronda Homes

   |   

River Club

River Club
Sold
Sold
3
2
1
From 2,574
unit-banner-imageunit-banner-imageunit-banner-image
The Chatham Plan details
The Chatham Plan is now sold.
Check out available nearby plans below.