

































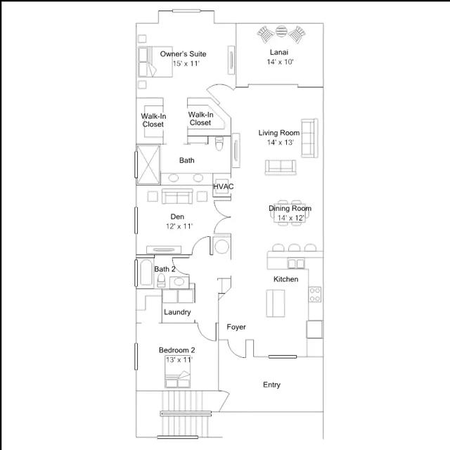
This condo is the largest plan in the collection. Near the foyer is a kitchen that leads to a versatile living room and dining space in a shared open design, with access to the lanai for outdoor activities. A private den with endless possibilities sits to the side, while an owners suite and an additional bedroom offer relaxing escapes within the home.