




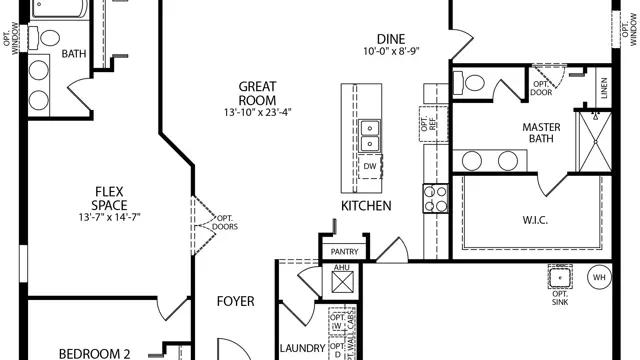
Welcome to the Clearwater Single Family Home Design by Maronda Homes. Engineered for comfortable and efficient living, The Clearwater floor plan features at least 1,856 square feet of finished living space. The Clearwater floor plan has 3 Bedrooms and 2 Full Baths that act as the starting point for your home design. The exterior of this home boasts an optional stone front, covered entry way and a decorative masonry finish. The open floor plan is highlighted immediately upon entry, walking in to a larger open living space. The spacious flex space can be complemented with any arrangement of furniture and also leads you to a beautiful kitchen. Sleeping quarters for guest will be opposite off the master suite. The large master suite with a full bath and walk in closest reside on the other side of the home and is the perfect getaway in your own home. This home bo...
Stay informed with Livabl updates on new community details and available inventory.