















































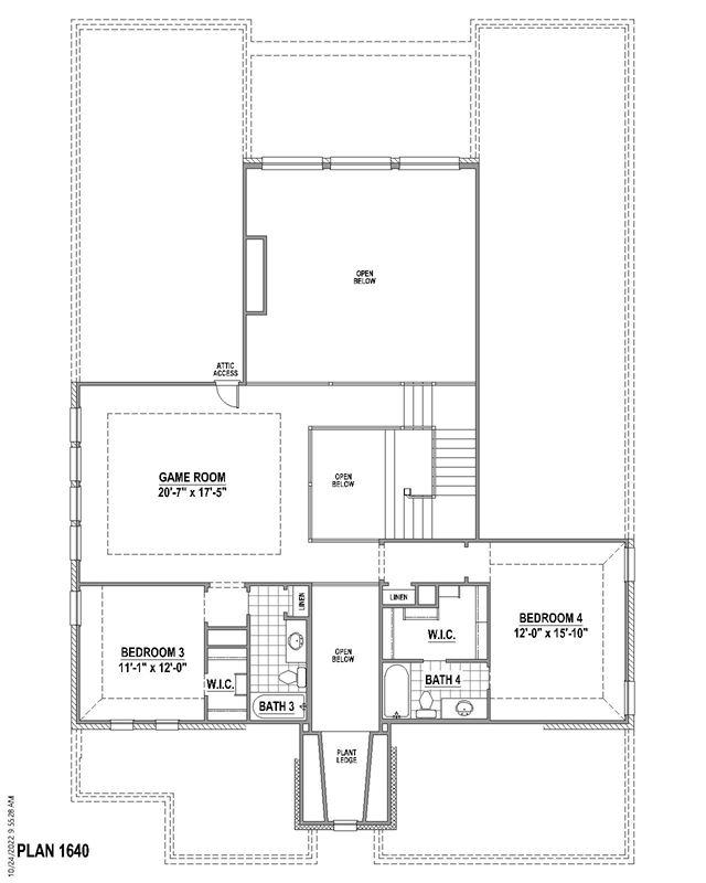
Terrific 2-story home with 4 bedrooms, 4 full baths, 1 powder bath, dining area, study, game room, outdoor living area and 3-car tandem garage. There are so many dramatic details in one of our freshest floor plans. Upon entry you will have views straight ahead of the family room, two open railed cat walks, a multi-level landing staircase and lower and upper windows. The plan features an oversized kitchen island with knee space for dining as well as a butlers pantry providing ample space for meal prep, entertaining and everyday use. A large walk-in pantry, an oversized main bedroom closet and a storage area under the staircase are just a few of the storage features offered in this home. Bedroom 2 on the first floor is an ensuite offering privacy and functionality. The mud bench upon entry from the garage makes a great landing place for backpacks, jackets and...