











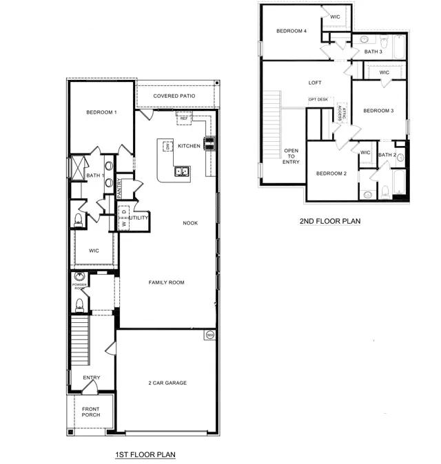
The 2445 Republic floorplans is one of our two-story floorplans featured in our Winchester Crossing community in Princeton, Texas. With 2 modern farm house inspired exteriors to choose from, the Republic plan is sure to turn heads. Inside this 4 bedroom, 3.5 bathroom home, youll find approximately 2,448 square feet of comfortable living. The living area is an open concept, where your kitchen, living, and dining areas blend seamlessly into a space perfect for everyday living and entertaining. The kitchen features cabinets with hidden hinges and crown molding, hard surface countertops, an island, and stainless steel dishwasher and range, which are sure to both turn heads and make meal prep easy. In every bedroom youll have carpeted floors and a closet in each room. Whether these rooms become bedrooms, office spaces, or other bonus rooms, there is sure to be comfor...
Stay informed with Livabl updates on new community details and available inventory.