


























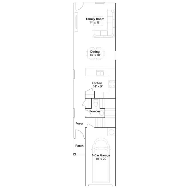
The first floor of this two-story home is host to a spacious open floorplan that seamlessly connects an inviting family room, elegant dining room and chef-inspired kitchen. Upstairs, there are three bedrooms, including the luxe owners suite, which features a restful bedroom, en-suite bathroom and generous walk-in closet.
Stay informed with Livabl updates on new community details and available inventory.