


















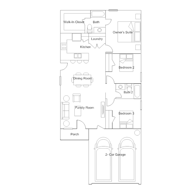
This single-story home has a classic layout for young families. The front door leads to a foyer with a laundry room attached, while down the hall is the open concept living area with a family room, dining room and kitchen. Adjacent are three bedrooms, including the owners suite, which features a walk-in closet and full bathroom.