









































































Get additional information including price lists and floor plans.
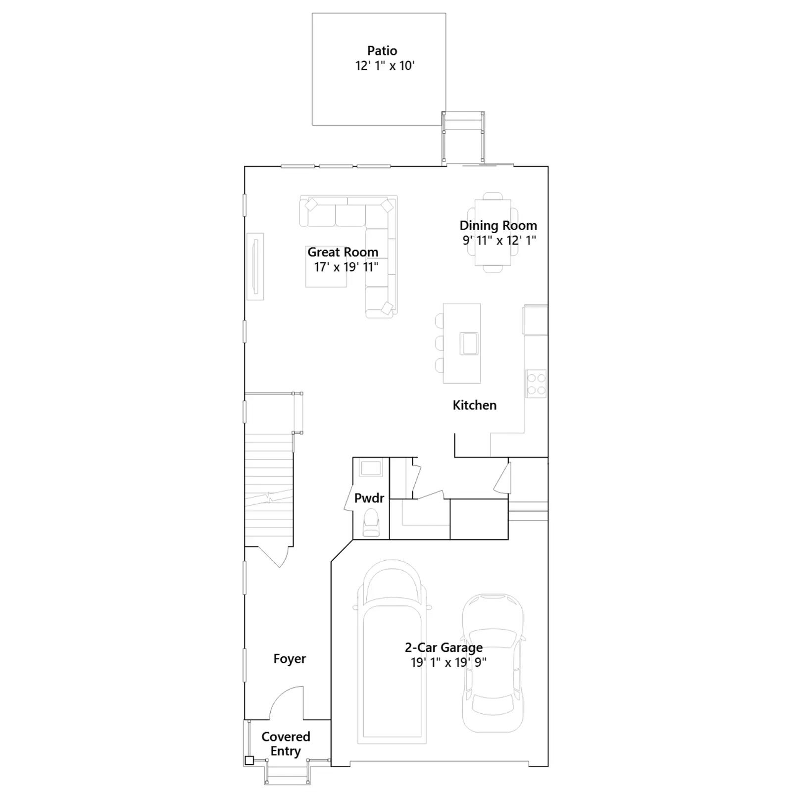
This new two-story home features an inviting open-concept layout on the first floor where the kitchen, dining room and Great Room meet. On the second level, a versatile loft provides a convenient shared living area easily accessible from two bedrooms and a lavish owners suite with a full bathroom and walk-in closet. A finished basement with an attached full-bathroom provides a flexible area perfect for entertaining or personal hobbies.
Stay informed with Livabl updates on new community details and available inventory.