





















































































































































































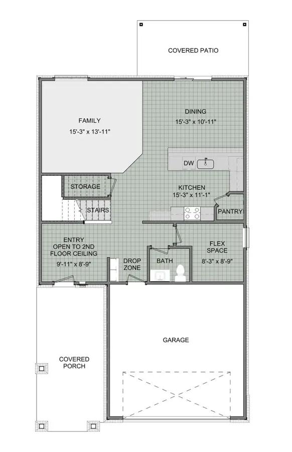
This floor plan boasts 2360 square feet, 4-5 bedrooms, 2.5 bathrooms. This is one of the most versatile floor plans yet! With an option for a loft or a fifth bedroom, a flex space perfect for that home gym or office youve been needing, and an open concept downstairs, this home will fit any family. Check out the sky-high ceilings in the entry, the drop zone coming in from the garage, and the ample storage - whats not to love!
Stay informed with Livabl updates on new community details and available inventory.