

























































Get additional information including price lists and floor plans.
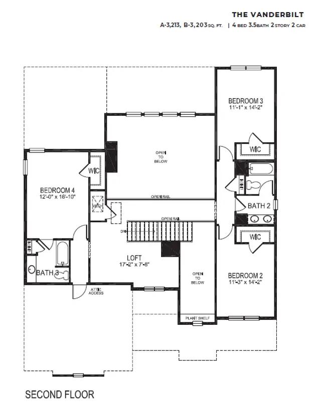
The Vanderbilt floor plan offers a grand 3,213 sq ft of open living space, blending comfort and luxury. On the main level, you'll find a formal dining room, a flex room, laundry room, and an expansive open concept great room featuring huge windows that fill the space with abundant natural light. The bright and airy kitchen is a chef's dream, featuring a spectacular center island, walk-in pantry, and premium gourmet amenities such as stainless steel appliances, quartz countertops, and a gas cooktop. Perfect for both entertaining and everyday use. The first-floor primary suite offers the ultimate retreat with an oversized walk-in closet, a spa-like bathroom with separate vanities and a private water closet. Both the kitchen and primary suite lead to a huge covered deck, ideal for outdoor dining and relaxation. Upstairs, you'll find an additional l...
Stay informed with Livabl updates on new community details and available inventory.