New Homes for Sale
Articles
Professionals
Log in
Sign up
Photos 2
Videos 0
Map
Interactive floor plan 0
Virtual 0
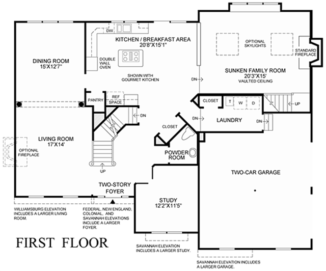
Columbia Plan
By
Toll Brothers
|
The Hills at LaGrange
Community
Available homes
Get updates
Save
Request info
Request info
Community
Available homes
Request info
Get updates
Save
Request info
The Hills at LaGrange
Get updates
Request info
Sold
Sold
4
From 3,170
Columbia Plan details
Address:
Poughkeepsie, NY 12603
Plan type:
Detached Two+ Story
Beds:
4
SqFt:
From 3,170
Ownership:
Fee simple
Interior size:
From 3,170 SqFt
Lot pricing included:
Yes
Columbia Plan is now sold.