
















































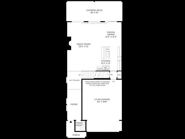
The Orford with Basement's airy foyer reveals an expansive great room with rear patio, and bright casual dining area overlooked by the well-appointed kitchen offering a large center island with breakfast bar, plenty of counter and cabinet space, and sizable pantry. The stunning primary bedroom suite is defined by a generous walk-in closet and impressive primary bath with dual-sink vanity, large soaking tub, luxe shower, and private water closet. Adjacent to a sizable loft, secondary bedrooms feature ample closets and shared hall bath with dual-sink vanity. Additional highlights include a spacious finished basement with covered patio, convenient powder room, centrally located laundry, and additional storage throughout.
Stay informed with Livabl updates on new community details and available inventory.