





















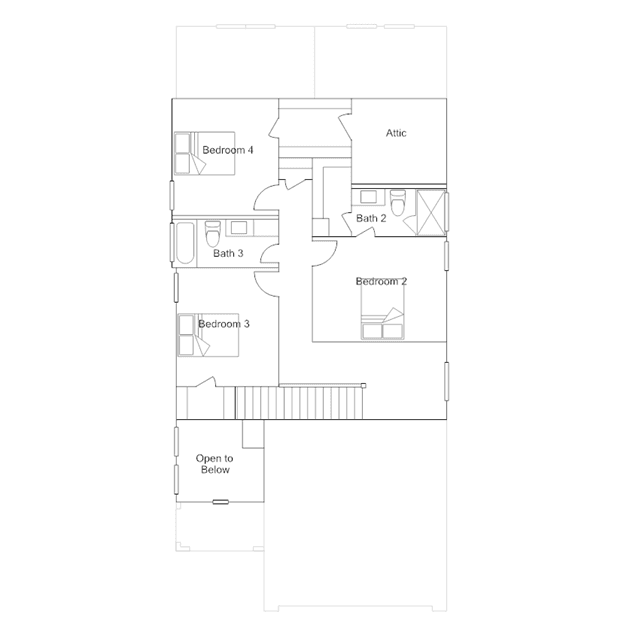
This two-story home is perfect for families who need privacy. The owners suite is on the first floor with a full bathroom and walk-in closet, adjacent to the open concept family room, dining area and kitchen. Upstairs are three bedrooms and two full bathrooms, perfect for kids and teenagers.