

















































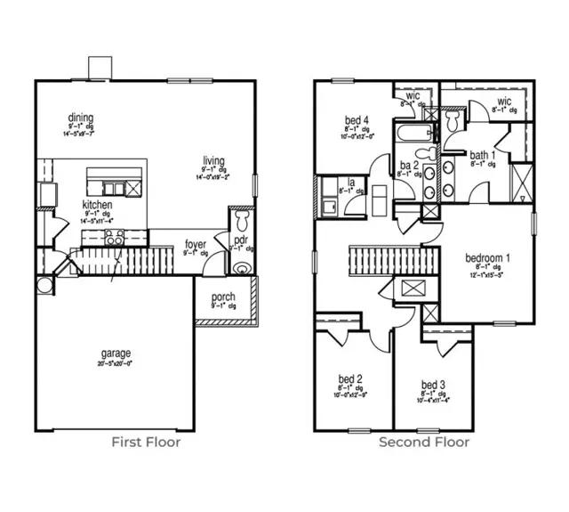
Introducing the Aislewhere style meets space in this thoughtfully designed 2-story home offering 1,927 square feet, 4 bedrooms, 2.5 bathrooms, and a 2-car garage. Located in the vibrant master-planned community of Rice Hope, the Aisle is perfect for families or anyone who craves open living and modern convenience. Step into a welcoming foyer and into an expansive open-concept main floor, where the large kitchen boasts ample cabinet space, stainless steel appliances, pantry, and a spacious center island that anchors the space. Whether you're prepping dinner or hosting a crowd, the kitchen seamlessly flows into the living and dining areas for easy entertaining. A private powder room and smartly positioned coat closet round out the functionality of the first floor. Upstairs, youll find a large primary suite that serves as a relaxing retreat, complete with a du...
Stay informed with Livabl updates on new community details and available inventory.