






































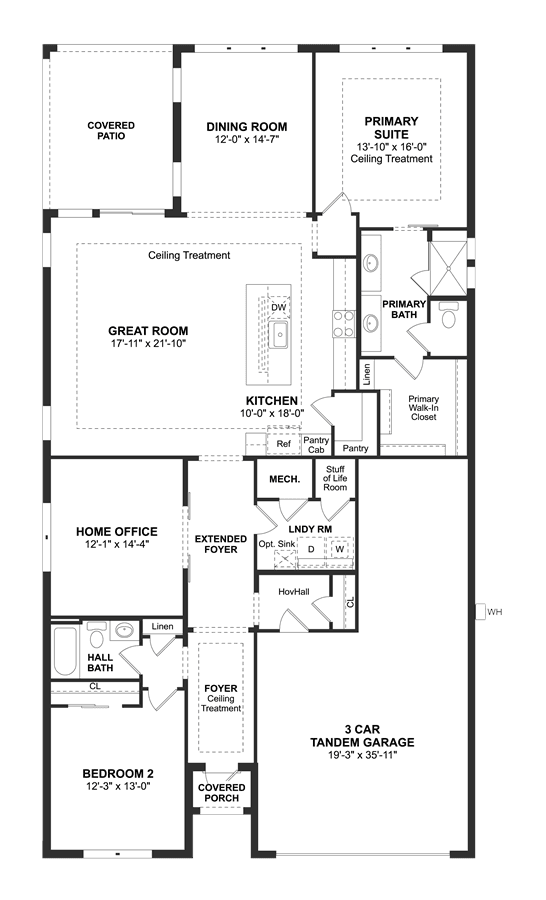
Private home office for working from home. Spacious great room with slider to covered patio. Beautiful kitchen with large island and roomy pantry. Luxurious primary suite with triple windows. Relaxing primary bath with spacious shower and walk-in closet. Beautiful covered patio for outdoor entertaining.
Stay informed with Livabl updates on new community details and available inventory.