











































































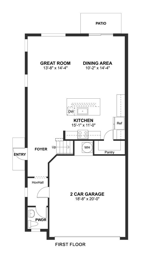
Desirable end unit with natural sunlight and private side entry. Spacious open floorplan, perfect for gatherings. Stunning kitchen with large walk-in pantry for storage. Dining area with sliding door access to patio. Relaxing primary suite with private bath and walk-in closet. Convenient second-story laundry, perfect for keeping home tidy.