























Images coming soon
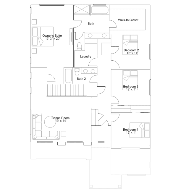
This spacious two-story home comes complete with a total of five bedrooms for large or growing families. On the first floor is an open-concept main living area that connects to a covered patio for outdoor opportunities, while an upstairs bonus room is perfect for serving as a home theater, tech space or recreation area.