hero-image-0

2116 St. John's Street

By

Bold Properties

   |   

Edgestone

Edgestone
Sold
Sold
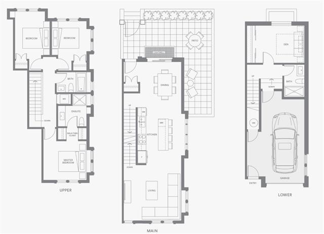
3
3
1
1,563
2116 St. John's Street details
2116 St. John's Street is now sold.
Check out available nearby townhomes below.