hero-image-0
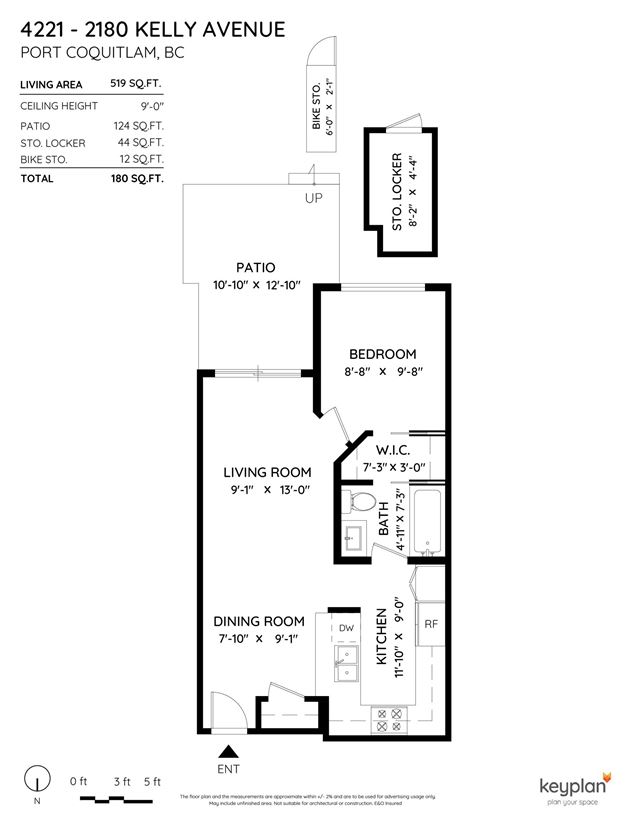
Montrose Square (Building C & ...
Sold
Sold
1
1
519
Unit 4221 details
Unit 4221 is now sold.
Check out available nearby condos below.