











































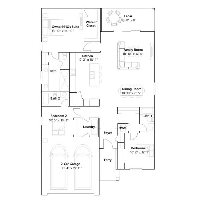
Enjoy waterfront living at its finest at Harbor East, a gated community of single-family homes near the Myakka River in Port Charlotte. This single-story home features a split floorplan that divides the comfortable bedrooms with an open layout among the dining room, kitchen and family room. An attached lanai offers indoor-outdoor hosting opportunities, while the nearby owners suite showcase an oversized walk-in closet and a spa-style bathroom. Rounding out the home is a convenient two-car garage. Select homesites offer stunning lake views or direct access to a deep water canal that connects to Charlotte Harbor and the Gulf Coastperfect for boating enthusiasts. This serene setting combines natural beauty with modern comfort, offering privacy and the ultimate Florida lifestyle. Residents can explore miles of unspoiled shoreline along the Peace and Myakka rivers or ...
Stay informed with Livabl updates on new community details and available inventory.