
















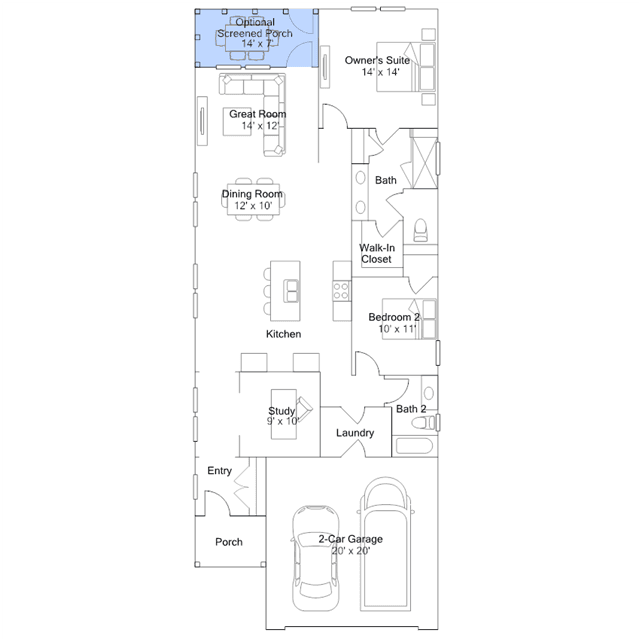
This single-story home features a contemporary open concept layout among the kitchen, dining room and Great Room with a screened porch out back to enjoy the sweet southern breeze. Found off the entry is a convenient study, while a total of two bedrooms are located to the side, including the owners suite with a spa-like bathroom. A two-car garage completes the home.