








































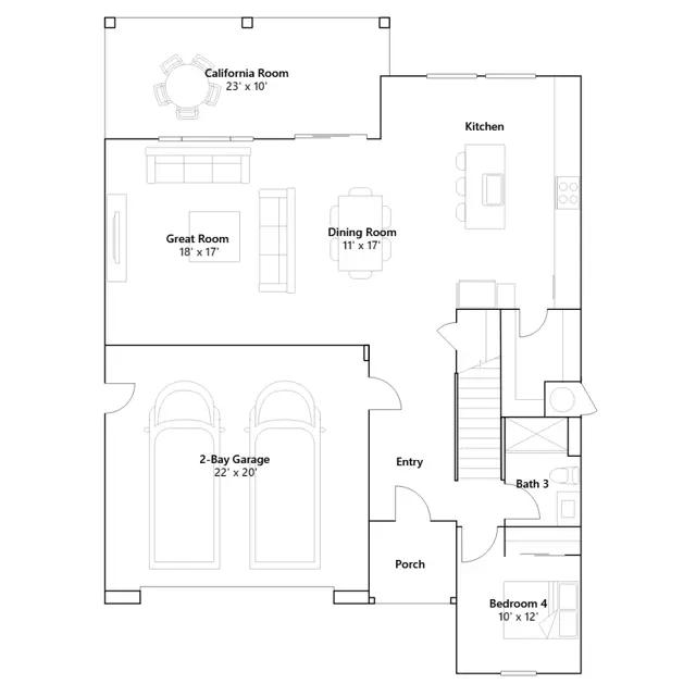
On the first floor of this two-story home, an open-concept floorplan seamlessly connects a modern kitchen, Great Room and dining room, with sliding glass doors leading to the California Room. A secondary bedroom and full bathroom are located off the entry, ideal as a long-term guest suite or home office. Three bedrooms can be found upstairs, including the expansive owners suite, along with a loft offering shared living space on the second floor.