






































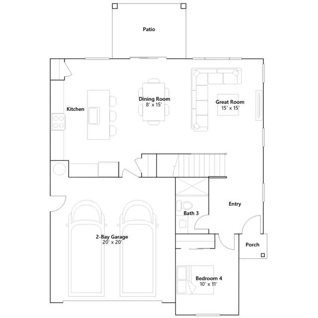
This two-story home opens into a shared layout between the kitchen, dining room and Great Room, making entertaining easy, along with access to a patio for outdoor lounging. A sole secondary bedroom and a full-sized bathroom on the first floor are ideal for accommodating overnight guests or a home office, depending on the households needs. Upstairs are two additional secondary bedrooms off a versatile loft, along with an expansive owner's suite with an en-suite bathroom and large walk-in closet.
Stay informed with Livabl updates on new community details and available inventory.