










































































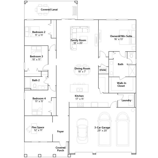
This comfortable single-story home opens to a shared floorplan that generates flow from the kitchen and nook to the spacious family room. Framing the home is a versatile flex room that grows with the family, along with all four bedrooms, including a lavish owners suite with a private bathroom. The three-car garage optimizes organization.
Stay informed with Livabl updates on new community details and available inventory.