



























Get additional information including price lists and floor plans.
Images coming soon
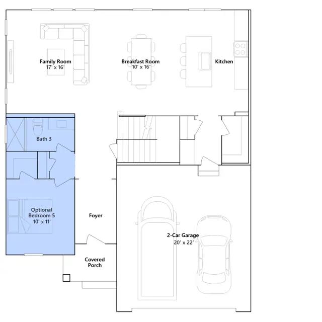
This new two-story home is a family-friendly haven with a first floor featuring an open design among the kitchen, breakfast room and family room in addition to versatile flex space off the foyer. Upstairs are a generously sized loft that adds shared living space, two secondary bedrooms and the owners suite.
Stay informed with Livabl updates on new community details and available inventory.