hero-image-0
hero-image-1
hero-image-2
hero-image-3
hero-image-4

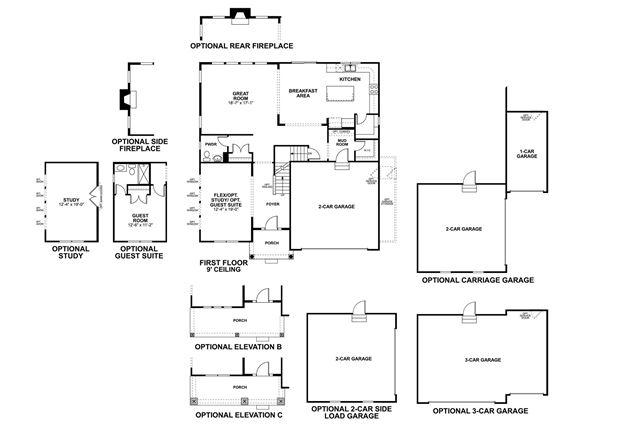
Northwestern Plan

By

M/I Homes

   |   

The Ridge at Glacier Pointe

The Ridge at Glacier Pointe
For sale
Model Home
For sale
From $653,900
2
4
2
1
From 2,873
Northwestern Plan details

Contact sales center

Get additional information including price lists and floor plans.

Available homes

Interested? Receive updates

Stay informed with Livabl updates on new community details and available inventory.