






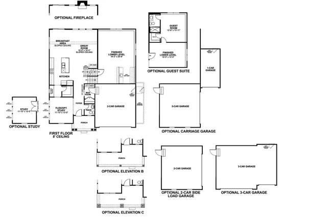
Welcome to the brand new, split-level floorplan by M/I Homes. The Lehigh is a perfect place for a growing family to call home with a finished lower level, 4 bedrooms, and a loft. Fall in love with the space inside as well as the charming curb appeal outside. Choose from 3 options of exterior elevations: the traditional, farmhouse, and craftsman, to express your personal style.
Stay informed with Livabl updates on new community details and available inventory.