





























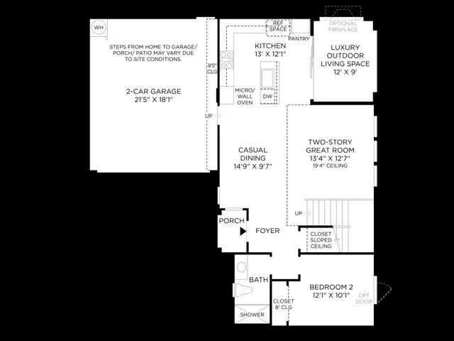
The Elina home design offers an alluring mix of elegant design and functional living spaces. Entering through the foyer, you are greeted by an inviting open floor plan that seamlessly connects a two-story great room, casual dining area, and gourmet kitchen that features a central island with breakfast bar, wraparound counter and cabinet space, and a spacious pantry. On the second floor, an optional loft provides additional versatile space for relaxation and entertainment. The luxurious primary suite boasts a coffered ceiling, dual sinks in the primary bathroom along with a luxurious shower and separate soaking tub. Additional highlights include secondary bedroom suites that feature roomy closets and a shared hall bath, laundry room conveniently located on the bedroom level, and a gorgeous outdoor living area ideal for enjoying beautiful weather.
Stay informed with Livabl updates on new community details and available inventory.