


























Get additional information including price lists and floor plans.
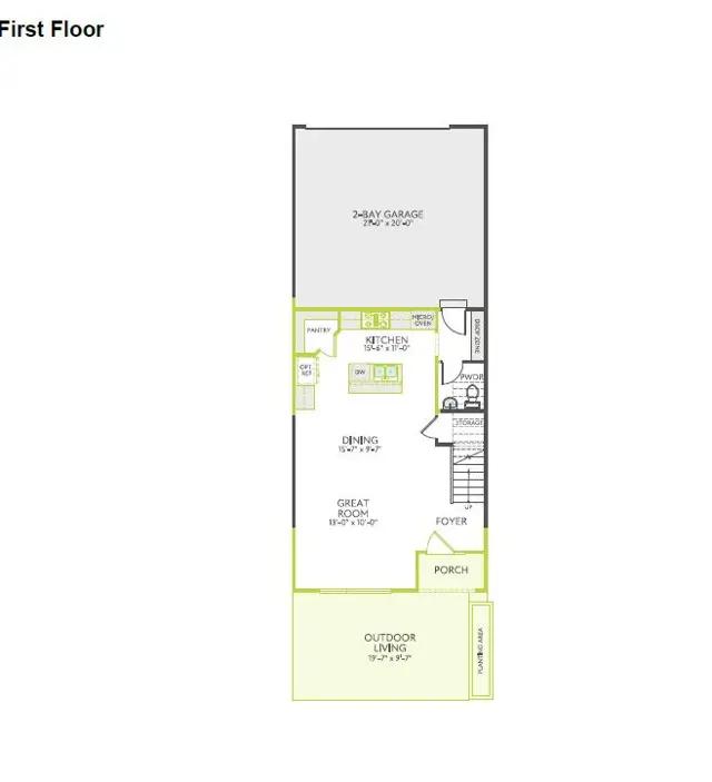
This new, two-story, townhome features convenience and accessibility focused home design. The Sampson includes a 2-bay attached, rear load garage, second floor loft, a drop zone right off the garage, and a spacious living and kitchen area perfect for entertaining. The spacious kitchen is complimented by a stunning island with plenty of space for family gatherings. On the second floor you will find the spacious primary suite accompanied by two additional bedrooms. The loft on the second floor is the perfect spot to gather with family and friends and watch your favorite movie.
Stay informed with Livabl updates on new community details and available inventory.