hero-image-0
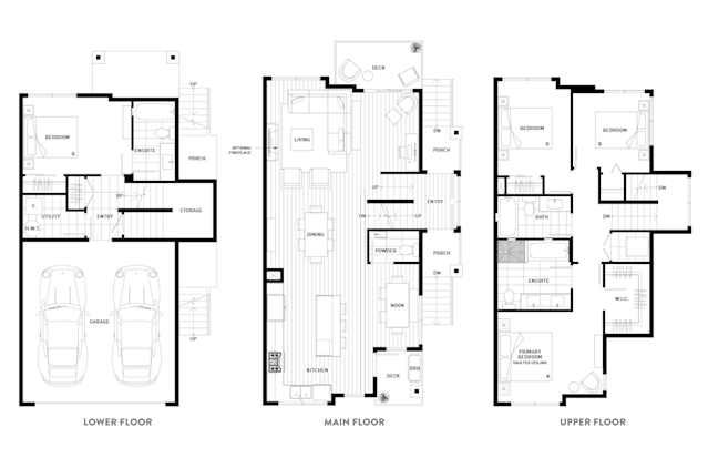
Nature's Walk - Townhomes
For sale
For sale
From $1,279,900
4
3
1
From 1,920
unit-banner-imageunit-banner-imageunit-banner-image
E Plan details

Contact sales center

Get additional information including price lists and floor plans.

Interested? Receive updates

Stay informed with Livabl updates on new community details and available inventory.