hero-image-0
hero-image-1
hero-image-2
hero-image-3
hero-image-4
hero-image-5
hero-image-6
hero-image-7
hero-image-8
hero-image-9
hero-image-10
hero-image-11
hero-image-12
hero-image-13
hero-image-14
hero-image-15
hero-image-16
hero-image-17
hero-image-18
hero-image-19
hero-image-20

9531 65th Lane N

By

Lennar

   |   

Townes at Bayou Heights

Townes at Bayou Heights
Sold
Sold
3
2
1
2,319
9531 65th Lane N details
9531 65th Lane N is now sold.
Check out available nearby townhomes below.

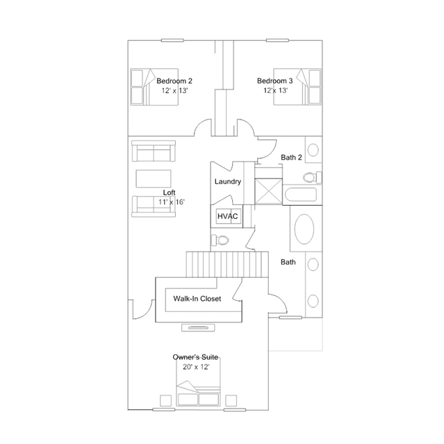
Floor plan

Sold
VIRTUAL TOUR

Marisol

Townes at Bayou Heights

This two-story townhome features a contemporary layout on the first floor connecting the family room, kitchen and dining room in a breezy, open-plan design. Nearby is a covered patio to extend activities outdoors. Upstairs hosts two secondary bedrooms, a versatile loft and the spacious owners suite with a spa-style bathroom. Completing the home is a convenient two-car garage for convenient storage space.