




































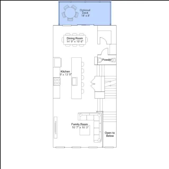
This new three-story townhome features a two-car garage and a spacious recreation room upon entry, while upstairs is an open space family room, kitchen and dining room. At select homesites is an optional deck for outdoor living. All three bedrooms are situated on the third floor, including the tranquil owners suite with an attached bathroom and walk-in closet.
Stay informed with Livabl updates on new community details and available inventory.