hero-image-0
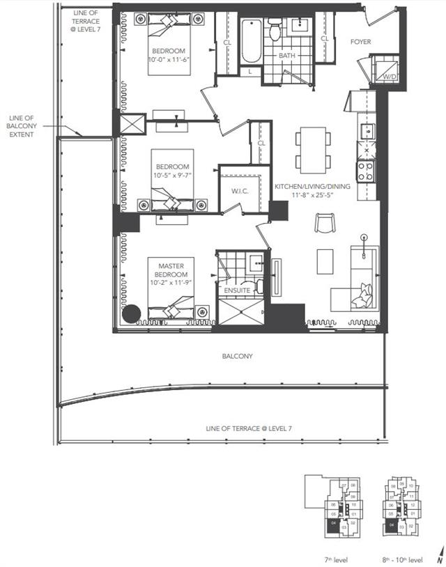
Universal City Condos - Phase ...
Sold
Sold
3
2
From 1,026
unit-banner-imageunit-banner-imageunit-banner-image
3A1 Plan details
3A1 Plan is now sold.
Check out available nearby plans below.