hero-image-0
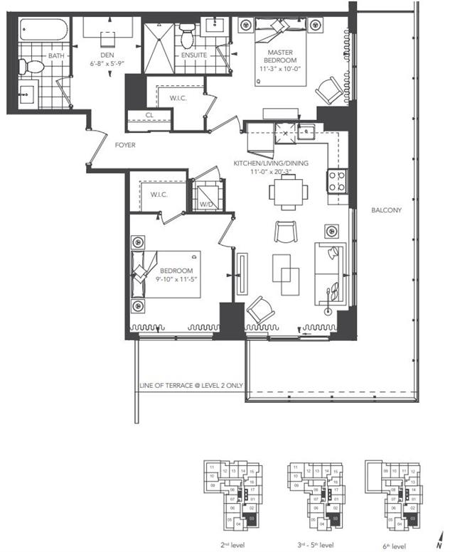
Universal City Condos - Phase ...
Sold
Sold
2
2
1
From 856
unit-banner-imageunit-banner-imageunit-banner-image
2A+D Plan details
2A+D Plan is now sold.
Check out available nearby plans below.