hero-image-0
Universal City Condos - Phase ...
Sold
Sold
1
1
1
From 589
unit-banner-imageunit-banner-imageunit-banner-image
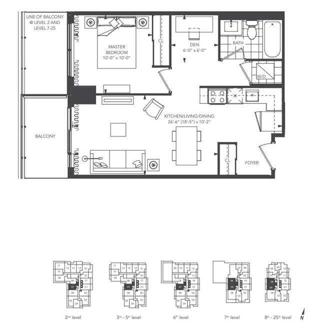
1A+D Plan details
1A+D Plan is now sold.
Check out available nearby plans below.