hero-image-0
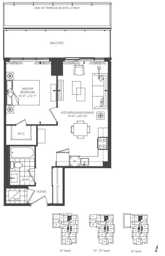
Universal City Condos - Phase ...
Sold
Sold
1
1
From 566
unit-banner-imageunit-banner-imageunit-banner-image
1A Plan details
1A Plan is now sold.
Check out available nearby plans below.