












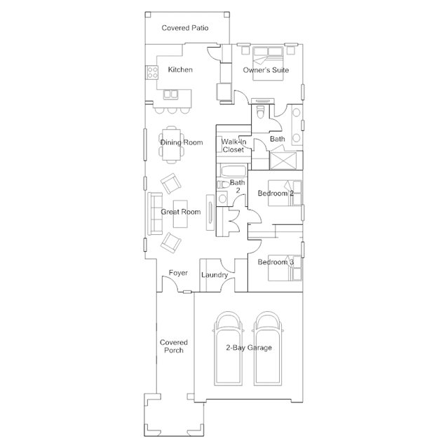
This new home is laid out on a single floor for comfort and convenience. It features a Great Room for family gatherings, a dining room for memorable meals, a kitchen for inspired cooking, bedrooms including an owners suite for restful nights and a covered breezeway and covered patio for outdoor living.