





















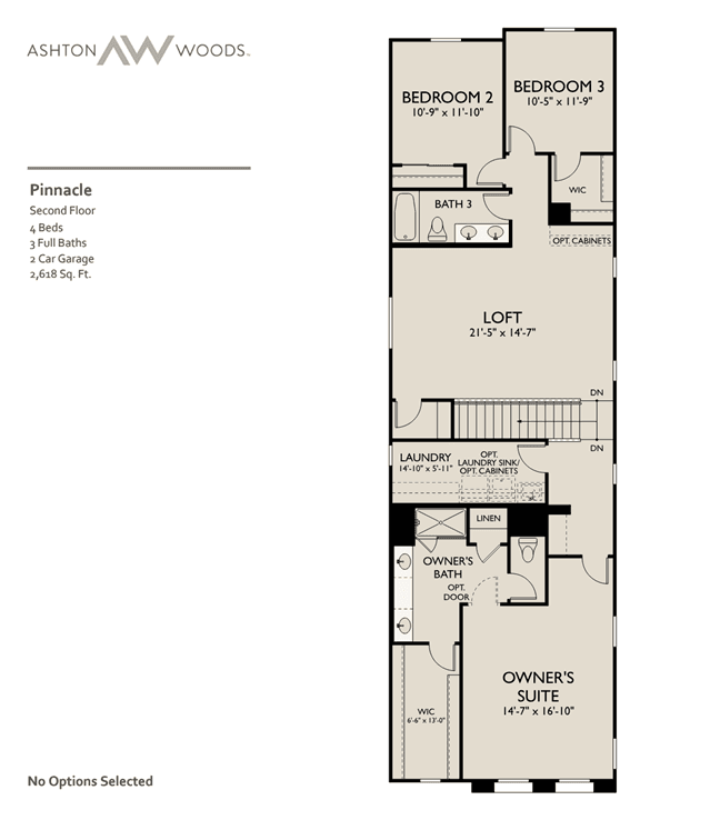
Welcome to the Pinnacle a spacious and flexible 2,618 sq. ft. two-story home designed for modern living. This thoughtfully crafted floor plan features 4 bedrooms, 3 full bathrooms, a versatile loft, and a 2-car garage.The open-concept gourmet kitchen is a standout with its large center island, perfect for meal prep, casual dining, or entertaining. It flows seamlessly into the dining area and great room, creating a bright, connected living space. Step outside to a covered patio right off the kitchen and dining area ideal for outdoor gatherings or relaxing evenings.Upstairs, youll find a convenient second-floor laundry room, generously sized bedrooms, and a spacious owners suite for your own private retreat. The loft provides a great bonus area for a playroom, home office, or media space or opt for a fifth bedroom to meet your family's needs.This home offers...