




















































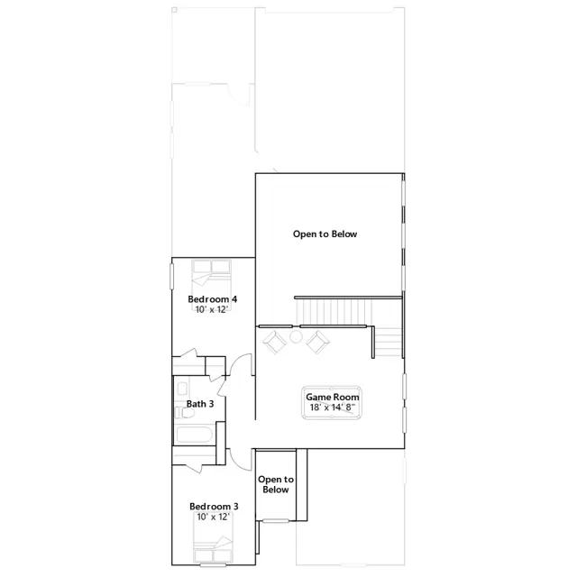
The first floor of this new two-story home is host to a spacious and flexible open-concept floorplan with access to a covered patio for easy indoor-outdoor living. A secluded study can be found off the foyer, near a luxurious owners suite and additional bedroom. Two bedrooms share the second floor with a versatile and inviting game room.
Stay informed with Livabl updates on new community details and available inventory.