

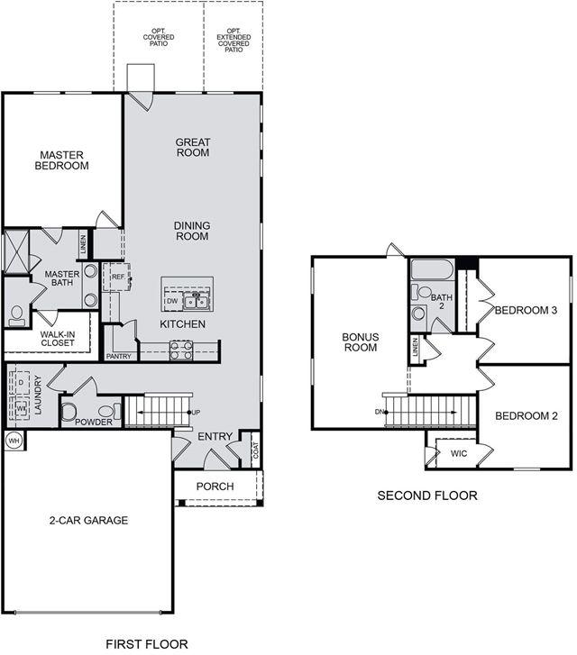
Enjoy a porched entry with conveniently located coat closet at the front of home. The kitchen opens to the dining and Great Room, perfect for hosting friends and family. Cook in style in a modern kitchen featuring Stainless Steel appliances, kitchen island with single-basin sink and corner walk-in pantry. A first floor owner's suite with sizable walk-in closet, large shower, dual vanities and dedicated linen storage offers a private retreat. A powder bath and laundry room with shelving and space for additional storage is located on first floor for convenience. Upstairs features two secondary bedrooms, a full bath, two linen closets and a spacious Bonus Room that provides extra family or work space. A 2-car garage completes this home.