












































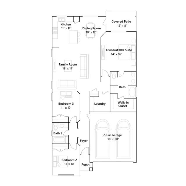
Designed with the way families live in mind, this single-level home boasts an open floorplan shared between the living and dining space that works to maximize the footprint of the interior. There are three bedrooms in total two secondary bedrooms off the foyer and the owners suite situated privately near the family room making it ideal for small and growing families.
Stay informed with Livabl updates on new community details and available inventory.