


























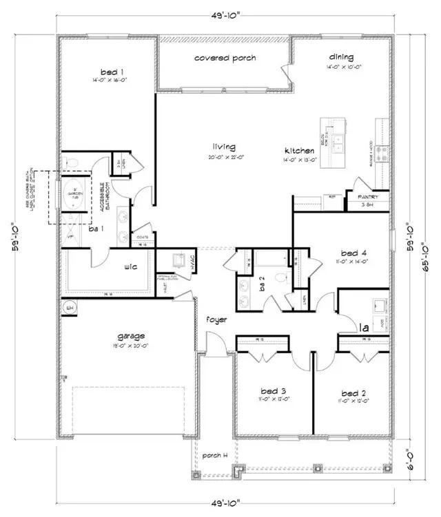
Step into the Denton at Williamsburg, one of our best-selling floorplans. This thoughtfully designed home features 4 bedrooms, 2 bathrooms, and over 2,200 square feet of comfortable living space, complete with a 2-car garage to meet your everyday needs. As you enter through the inviting front foyer, youll pass the garage entry and a short hallway leading to three secondary bedrooms. These bedrooms share a well-appointed full bathroom featuring a double sink vanity and a shower/tub combination. The laundry room is conveniently located nearby, offering practicality and ease of use. The heart of the home is the open-concept kitchen, which seamlessly flows into the living area, dining room, and covered back porch. Perfect for entertaining, this space boasts a large granite island, ample cabinetry, and a spacious walk-in pantry to help keep everything organized. ...