






































































Get additional information including price lists and floor plans.
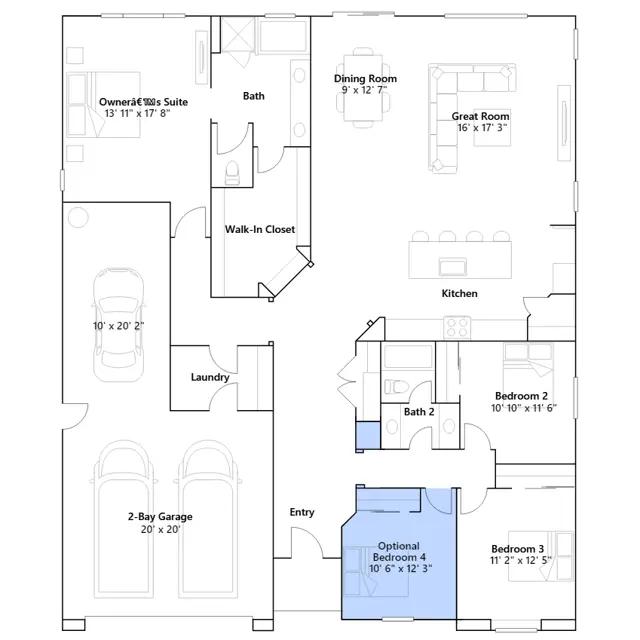
This new single-level home boasts a spacious and low-maintenance layout designed for modern lifestyles. Three secondary bedrooms are located off the entry, leading to an open-concept floorplan shared between the kitchen, living and dining areas. Nestled into a private rear corner is the lavish owners suite, offering direct access to a spa-inspired bathroom and generous walk-in closet.
Stay informed with Livabl updates on new community details and available inventory.