



















































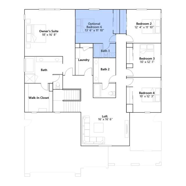
This two-story Next Gen home features a private suite with a separate entrance, living area, kitchenette and bedroom, ideal for multigenerational households. The first floor is host to an open-concept floorplan shared between the kitchen, living and dining areas. A spacious and flexible loft can be found upstairs, with three secondary bedrooms tucked away to the side. The luxurious owners suite is nestled into a private corner, complete with an en-suite bathroom, walk-in closet and retreat.
Stay informed with Livabl updates on new community details and available inventory.