
































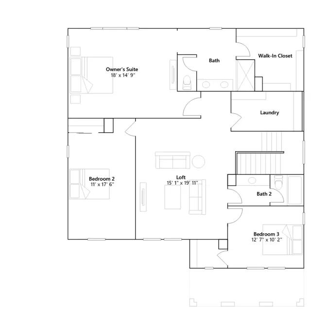
This new four-bedroom home offers ample space to live and grow. On the first floor, an open-concept floorplan combines the kitchen, living and dining areas, and a bedroom and full bathroom are located off the entry. A versatile loft shares the second floor with two secondary bedrooms and the luxurious owners suite, complete with an en-suite bathroom and walk-in closet.
Stay informed with Livabl updates on new community details and available inventory.