hero-image-0
hero-image-1
hero-image-2

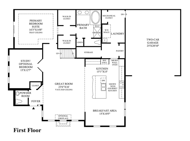
Martin Country Manor Plan

Regency at Hilltown
Sold
Sold
3
3
1
From 2,500
Martin Country Manor Plan details
Martin Country Manor Plan is now sold.
Check out available nearby plans below.