
























Get additional information including price lists and floor plans.
Images coming soon
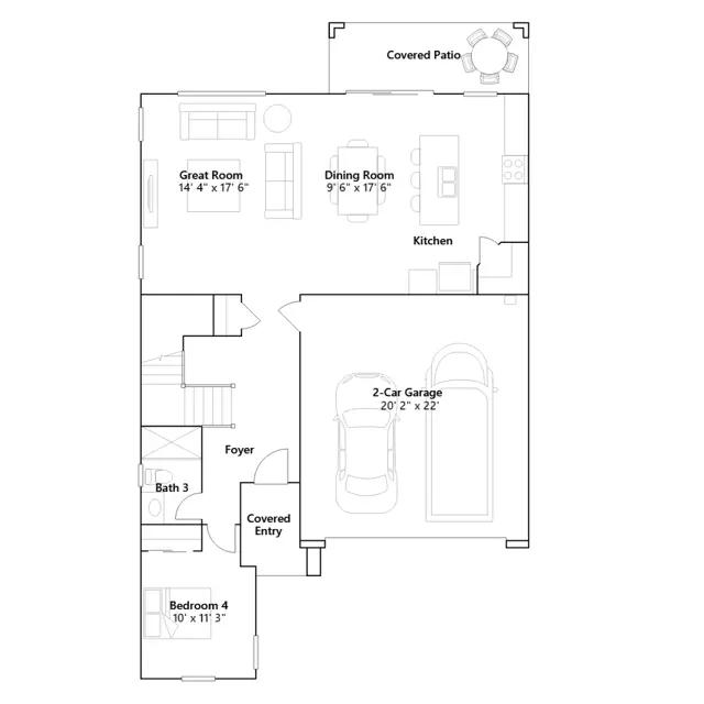
This new two-story home features an open-concept layout on the first floor, consisting of the kitchen, dining room and Great Room, with a covered patio offering convenient outdoor access. A secondary bedroom can be found off the entry, the ideal place for a guest suite or home office. Upstairs, there are three additional bedrooms, including the luxurious owners suite.
Stay informed with Livabl updates on new community details and available inventory.